10-092019

佳飞买家秀 | 成都西二环40㎡老房翻新,“60后”旧屋秒变“90后”

时间:2019-10-09 13:17  采编:佳飞编辑部

 

买房子是大事,装房子是趣事。

 

本人90后男青年一枚,虽然还未结婚,但是经过再三思虑,去年在成都老城区西二环入手了一套40平的小房子。房子修建于上世纪末,你们可以想想推开门眼前的情景,什么斑驳、古旧、童年回忆之类的词就会涌上心头。

 

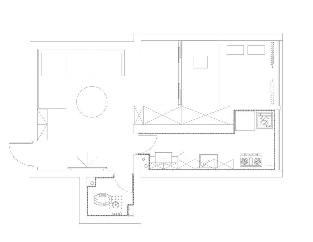
既然房子都买了,家装还是要搞起来的,先来上一个原来的户型图。

 

 

房子的格局有几个避不开的问题:

 

首先,这是老式房屋一室一厅的典型结构,客厅和卧室开间分布均匀,但都偏小,由于隔断的原因,造成客厅采光严重不足。


其次,卧室通往阳台,但是因为空间局限性,放完床以后到阳台的动线很逼仄。

 

第三是厨房开间小,实墙和小窗进一步划分了空间。

最后是阳台,虽然年轻人对阳台是非常渴望的,但是因为面积小,独立阳台让空间严重浪费。

 

 

这是改造后的房屋布局,大致来说有这些改动:拆除客厅和卧室之间实墙,满足了年轻人的社交需求;阳台入室,同时卧室向右移动确保了休息空间;厨房同样将阳台收入囊中,成为了L型布局。

 

接下来就是房子的装修对比图了。

 

客厅

 

 

 

【产品名称】木门

【品牌名称】新象木门·地板

【店铺地址】佳飞市场44栋1-2号

 

【产品名称】沙发

【品牌名称】掌上明珠家居 

【店铺地址】佳飞市场27栋2楼

 

 

入户就是客厅,因为性格比较偏安静,所以墙面用的是墨绿、黑色和暗紫色,黄色地毯用来调节明亮度,显得非常耐看。

黑色科技面料沙发是我的最爱,周末和朋友们开黑可以肆无忌惮地躺在上面。

 

小圆几必须强推,挪动方便,实用性强。个人觉得茶几并不是用来收纳的,越简单约好,不需要的时候直接收到一边就好。

 

卧室

 

 

 

【产品名称】窄框玻璃门

【品牌名称】合力创美

【店铺地址】佳飞市场49栋1楼13-14号

 

【产品名称】定制收纳柜

【品牌名称】史丹利衣柜 

【店铺地址】佳飞市场43栋1楼13-14号

 

 

 

卧室的前后对比非常强烈,隔断打通后用黑框落地推拉门替代,客厅马上就有了充足的光源,厨房外的转角处增加的到顶收纳柜,日常小物件全都可以放进去,也不会显得凌乱;原来裸露在外的电线全部入墙,嵌入式射灯和一盏壁灯让空间明亮又开阔。

 

厨房

 

 

 

【产品名称】花砖

【品牌名称】金牌亚洲陶瓷

【店铺地址】佳飞市场11栋1楼8-9号

 

 

 

厨房是我最满意的区域,打通隔断和阳台连接以后非常通透,而且洗、切、做一条动线很流畅。

 

厨房尽头拐角处是洗衣服的地方,用水很方便。

 

因为卫生间太小,所以原来的洗菜池现在被改成了半嵌入式的盥洗池,旁边放了一些定制柜用于收纳洗面奶、剃须液。

 

卫生间

 

 

 

【产品名称】卫浴

【品牌名称】安华卫浴

【店铺地址】佳飞市场7栋1楼13-15号

 

 

卫生间大变身,从黑黢黢的阴暗角落变成了工业风十足的时尚浴室,哑光浅灰色调墙砖让空间得以放大。地面用的是和厨房同色系的小花砖,有个呼应的效果。

 

这个国庆节,你们都在看山看水看人,而我每天都跑到新房子里这里摸摸那里看看,逛遍家居卖场找喜欢的软装。终于有了属于自己的家,再看看银行余额,我想说“扶朕起来,朕要去上班!”

 

对了,悄悄透露一点消息:现在到佳飞市场买新象家居的木门和地板,优惠很给力!

 

 

 

Newel新象地板·木门

活动时间:10月1日-10月27日

活动地点:佳飞市场44栋1-2号

 

 

全场六折

活动期间,新象地板·木门全场6折起

 

 

分享拿礼品

凡活动期间内订购一款新象地板木门,并分享活动海报及合影至朋友圈,即可获得价值168元智能感应垃圾桶一只

 

 

百元代金券

转发本条微信到朋友圈并获得70个赞,可获得100元消费抵用券