10-172019

佳飞买家秀 | 95夫妇的两居室,替我实现了走哪躺哪的梦想!

时间:2019-10-17 13:14  采编:佳飞编辑部

今天要分享的屋主是两个95后摄影师。
 
 
由于常年奔波在外,所以这对小夫妻非常珍惜在家里的时光。
 
 
女主人说“两个人躺在家里的地板上晒太阳就比出国度蜜月还幸福!”

 

 

所以,他们的家很舒适又有些慵懒,但端端认为这才是年轻人的家吧~

 

好了,我们快去看一看吧~

 

 / 户型概况 

 

户型:两居室

装修风格:北欧

面积:89㎡ 

预算:12万

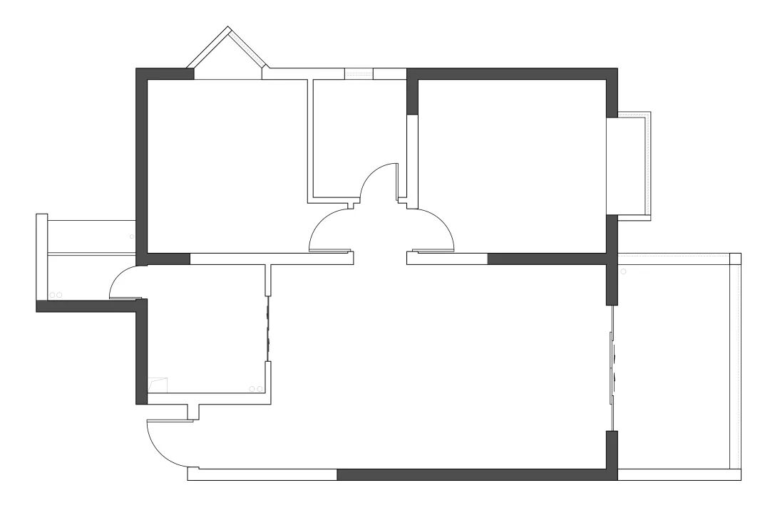
户型图
平面图

 

房子是买的二手房。
 
 
老房的缺陷就是卫生间、厨房面积小,还有阳台闲置的问题。这个时候就体现出了设计的重要性。

 

男主人想要大厨房;

女主人想要浴缸;

两人都希望在家里可以“走哪躺哪”。

 

针对问题和需求,设计师做了以下改动:
  1. 拆除厨房非承重墙,改变入口形式,改为半开放式厨房;

  2. 拆除客厅阳台推拉门,设置工作区和休闲区,充分利用阳台空间;

  3. 从次卧借空间到卫生间,留出更多空间放浴缸。

 

 

 / 玄关 

 

 

原先的玄关比较窄,设计师改变墙砖的铺设方向,创造出新的活动空间,容下了凳子、穿衣镜和鞋柜三件套。

 

半开放式的鞋柜不仅满足了屋主的收纳需求,还起到了一定的装饰作用。

 

 / 餐厅 

 

 
走过玄关之后就是餐厅,原木风餐桌椅搭配白色吊灯,清新素雅。

 

 

因为在厨房开了“洞”,所以坐在餐厅可以看到厨房里忙碌的身影,让空间更有连贯性,做饭的时候也可以和家人进行沟通~再也不是“一个人”的战斗模式。

 

【产品名称】北欧风格吊灯

【品牌名称】松伟简约原创灯饰

【店铺地址】佳飞市场14栋2楼13-14号

 

【产品名称】北欧风格餐桌

【品牌名称】亚美威邦家居

【店铺地址】佳飞市场47栋2楼1-28号

 

 

 

 / 厨房 

 

 

进入厨房内部,原先的厨房面积较小,拆除部分墙面,半隔断的设计增强了两个空间的联通,视野更加开阔,满足男主人在此大显身手的需求。

 

U型黑色厨柜与白墙相互映衬,线条感十足,干净整洁。

 

厨房高低台的设计,为烤箱和洗碗机提供空间。

 

 

【产品名称】定制橱柜

【品牌名称】鸿运整体橱柜

【店铺地址】佳飞市场39栋1楼17号

 

【产品名称】集成灶

【品牌名称】爱妻厨卫电器

【店铺地址】佳飞市场37栋1楼9号

 

 

 

墙面设置了简单的收纳栏和挂架,用于收纳餐厨具,不占用台面空间,随手可取,方便使用。

 

关于收纳,水槽上方的开放式吊柜也起到了收纳作用,可以说是把空间利用的淋漓尽致。

 

 

 / 客厅 

 

 

从厨房向外看,视线可以延伸至客厅。

 

 

L型沙发,有一定的延伸,在客餐厅之间起到了一些隔断作用,深蓝色布艺搭配灰色地毯,营造舒适的氛围。

 

墙面设计很简单,一个艺术感的收纳架不浮夸也不苍白。

 

 

【产品名称】地板

【品牌名称】菲林格尔地板

【店铺地址】佳飞市场52栋1楼12-14号

 

 

【产品名称】布艺沙发

【品牌名称】金虎家私

【店铺地址】佳飞市场42栋2楼10-12号

 

 

阳台经过改造后成了全新生活休闲区,拆除原有推拉门,整体抬高,工作、喝茶、休息都在一处,再也不是原来的杂物堆放区。

 

 

阳台右边的工作台是夫妻俩一起修图和吃鸡的小天地。
 
 
悠闲的时候在这儿看看摄影书籍,累了就坐在窗边看看风景舒缓一下累了的双眼,困了就直接躺下~

 

 / 主卧 

 

 
 
接下来就是卧室啦~
 
为了隔开卧室和餐厅,设计师在此处设计了收纳柜+玻璃隔断的组合,增加收纳、实现分区。

 

 

主卧给人的第一感受便是开阔舒适,榻榻米、飘窗、梳妆台一体化设计让休息区占了卧室的大部分面积,可谓“随处都能躺”。

 

 

【产品名称】全屋定制

【品牌名称】梵尼亚全屋定制

【店铺地址】佳飞市场47栋1楼13号

 

【产品名称】遮光窗帘

【品牌名称】美乐居布艺

【店铺地址】佳飞市场24栋2楼6-7号

 

 

 
超宽的榻榻米躺上去来回翻也不怕,座位底下收纳书籍,坐在这里看书、晒太阳,幸福赛过度蜜月。
 
 
 
 

 / 次卧 

 

 

次卧是未来的儿童房,和主卧一样,榻榻米占了一大半,同衣柜连在一起,形成超大一体化收纳区。

 

 

为什么说他家可以走哪儿躺哪儿,这两个卧室诠释的非常清楚!

 

家具设置较为简单,没有床,铺个床垫就能睡。书桌、休息区、飘窗3个功能区通过不同的高度阶梯来划分。

 

 

 / 卫生间 

 

 

卫生间位于两个卧室的中间地带,方便一家人及来客使用。

 

为了实现女主人想要浴缸的心愿,设计师从次卧借了一部分空间来扩大卫生间。选择了白色百叶窗帘,保证通风,增加室内光线。
 

湿区铺设正面的大理石瓷砖,干区墙面则使用了大理石纹路的异型砖,保持统一又有个性。

 

 

【产品名称】瓷砖

【品牌名称】广东福林建材

【店铺地址】佳飞市场20栋1楼8号

 

【产品名称】坐便器

【品牌名称】欧陆卫浴

【店铺地址】佳飞市场12栋1楼13-15号

 

 

 
设计师给这套作品取名“芳华”,因为两人正年轻,有大把时间可以挥霍,但宅在自己家同样不负好时光。